3 bedrooms house for sale in Tordera, Barcelona, Catalonia, Spain № 4644
12
ID4644
€ 395 000
- USD $
- RUB ₽
- NOK kr
- GBP £
- EUR €
Property description
*Tour available – request password*Exclusive newly built PASSIVHAUS townhouse, completed in July 2025, located in one of the best areas of the residential complex. A home designed under the PASSIVHAUS standard, ensuring year-round thermal comfort, almost zero energy consumption, and superior quality of life, with modern design and excellent finishes.
This property is ideal for those seeking real efficiency, savings on utilities, and well-being, without compromising on space, natural light, or style.
What does it mean to live in a PASSIVHAUS home?
Thanks to high-quality insulation, premium windows, and efficient systems, this home maintains a stable indoor temperature all year long, minimizing the need for heating and cooling.
Result: maximum comfort, high-quality indoor air, and very low energy bills.
Layout and Space
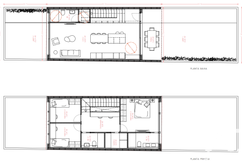
The property has 171 m² built and 95 m² usable interior space, spread over two floors with bright and functional spaces. It also features a 23 m² private rear terrace and access area with 44 m² garage space.
Ground Floor
Entrance with 44 m² garage space
Living-dining room with open-plan kitchen of 40 m², modern and full of natural light
Full bathroom
23 m² rear terrace, perfect for outdoor dining and relaxation
Upper Floor
Master bedroom with en-suite bathroom
2 individual bedrooms, bright and exterior-facing
Additional full bathroom
Study or home office area, ideal for remote work
Laundry and utility room
Location
Set in a quiet residential environment with easy and fast access to the highway towards Barcelona. Perfect for those seeking a peaceful life surrounded by nature, without giving up excellent connectivity and access to all services in Tordera.
Features and Finishes
High-end, energy-efficient home, equipped with premium materials and technology:
PASSIVHAUS standard for maximum energy efficiency
Floating parquet AC5, suitable for kitchens
Outdoor flooring in encapsulated technological decking, made from recycled materials
Designer kitchen equipped with SIEMENS appliances (oven, microwave, induction hob)
Airzone ducted climate control system
Exterior carpentry in wood and aluminum with Climalit glass
Motorized blinds
Built-in LED lighting
Bathrooms with large-format porcelain tiles and tempered glass screens
Smart home system for energy, climate, and sun protection control
WiFi video intercom
Automated security entrance door
Summary
Contact the seller
CityTordera
TypeHouse
Bedrooms3
Living space136 m²
- m²
- sq. ft
Completion dateIV quarter, 2026
Price
- Price
- per m²
€ 395 000
- USD $
- RUB ₽
- NOK kr
- GBP £
- EUR €
Similar offers
-
Bedrooms: 3Bathrooms: 2Living space: 136 m²
-
Bedrooms: 3Bathrooms: 2Living space: 135 m²
-
Rooms: 4Bedrooms: 3Bathrooms: 3Living space: 134 m²
-
Bedrooms: 3Bathrooms: 1Living space: 138 m²




































