200 sq.m. land plot for sale in Gava, Barcelona, Catalonia, Spain № 4933
24
ID4933
€ 450 000
- USD $
- RUB ₽
- NOK kr
- GBP £
- EUR €
Property description
¡Gran oportunidad en Gavà! Solar urbanizable ideal para inversores.IAD España presenta la venta de este solar urbanizable en Gavà, perfecto para la construcción de un edificio de hasta 4 plantas en una zona con alta demanda residencial.
Una opción ideal para promotores e inversores que buscan desarrollar un proyecto inmobiliario en una ubicación estratégica, con excelentes conexiones, servicios cercanos y un entorno en constante crecimiento.
________________________________________
Características del terreno
• Superficie total: 200 m² (según Catastro)
• Fachada: 7,50 metros
• Profundidad edificable: 16 metros
• Profundidad total del solar: 28 metros
• Superficie edificable: 120 m²
• Clasificación urbanística: Residencial en altura (bloques)
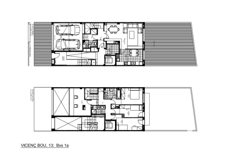
• Número de plantas edificables: hasta 4 alturas (proyecto 2 dúplex )
________________________________________
-Ubicación privilegiada
Gavà es una ciudad en pleno desarrollo, que combina naturaleza, servicios y conectividad:
• A pocos minutos de colegios, centros médicos y zonas comerciales
• Excelente comunicación: Renfe, líneas de autobús y fácil acceso a la C-32 y C-31
• A solo 15 minutos de Barcelona y 10 minutos del aeropuerto de El Prat
• Rodeado de espacios naturales: Parque Natural del Garraf y playa de Gavà Mar
________________________________________
*Conoce Gavà*
Gavà es una ciudad del área metropolitana de Barcelona, ubicada entre el mar y la montaña. Ofrece una calidad de vida excepcional, con un equilibrio perfecto entre entorno natural, servicios urbanos y cercanía a la capital catalana.
Cuenta con infraestructura moderna, una amplia oferta educativa y sanitaria, zonas comerciales y una gran apuesta por la sostenibilidad urbana. Su playa, su clima mediterráneo y su cercanía al aeropuerto la convierten también en un destino muy valorado para segundas residencias y turismo residencial.
Además, Gavà vive un momento de expansión urbanística, lo que se traduce en una creciente demanda de vivienda y un alto potencial de revalorización para las inversiones inmobiliarias.
________________________________________
-Alta rentabilidad y potencial
Este solar representa una excelente oportunidad de inversión, gracias a su ubicación estratégica y el constante crecimiento de la zona. Ideal para la construcción de viviendas con gran atractivo tanto para familias locales como para compradores internacionales.
________________________________________
¡No dejes pasar esta ocasión única en el Baix Llobregat!
• Superficie total: 200 m² (según Catastro)
• Fachada: 7,50 metros
• Profundidad edificable: 16 metros
• Profundidad total del solar: 28 metros
• Superficie edificable: 120 m²
• Clasificación urbanística: Residencial en altura (bloques)
• Número de plantas edificables: hasta 4 alturas (proyecto 2 dúplex )
________________________________________
-Ubicación privilegiada
Gavà es una ciudad en pleno desarrollo, que combina naturaleza, servicios y conectividad:
• A pocos minutos de colegios, centros médicos y zonas comerciales
• Excelente comunicación: Renfe, líneas de autobús y fácil acceso a la C-32 y C-31
• A solo 15 minutos de Barcelona y 10 minutos del aeropuerto de El Prat
• Rodeado de espacios naturales: Parque Natural del Garraf y playa de Gavà Mar
________________________________________
*Conoce Gavà*
Gavà es una ciudad del área metropolitana de Barcelona, ubicada entre el mar y la montaña. Ofrece una calidad de vida excepcional, con un equilibrio perfecto entre entorno natural, servicios urbanos y cercanía a la capital catalana.
Cuenta con infraestructura moderna, una amplia oferta educativa y sanitaria, zonas comerciales y una gran apuesta por la sostenibilidad urbana. Su playa, su clima mediterráneo y su cercanía al aeropuerto la convierten también en un destino muy valorado para segundas residencias y turismo residencial.
Además, Gavà vive un momento de expansión urbanística, lo que se traduce en una creciente demanda de vivienda y un alto potencial de revalorización para las inversiones inmobiliarias.
________________________________________
-Alta rentabilidad y potencial
Este solar representa una excelente oportunidad de inversión, gracias a su ubicación estratégica y el constante crecimiento de la zona. Ideal para la construcción de viviendas con gran atractivo tanto para familias locales como para compradores internacionales.
________________________________________
¡No dejes pasar esta ocasión única en el Baix Llobregat!
Contact the seller
CityGava
TypeLand plot
Living space200 m²
- m²
- sq. ft
Price
- Price
- per m²
€ 450 000
- USD $
- RUB ₽
- NOK kr
- GBP £
- EUR €
Similar offers
-
Bathrooms: 2Living space: 125 m²














